Plan ahead-invest in your future! This legal duplex, semi-detached style bungalow is finished top to bottom and offers exceptional versatility for homeowners and investors alike. The main floor features 9 ft ceilings, 3 spacious bedrooms, 3 bathrooms, and an open-concept kitchen with a walk-out to a deck overlooking Peel Park-complete with tennis courts, soccer fields, a baseball diamond, and more. Situated on a premium lot, the property also offers 4-car parking and separate utilities. The lower level includes a well-designed legal basement apt with 2 bedrooms, an open-concept living/family room, and a custom kitchen, along with a walk-out to a large backyard. Equipped with separate furnaces and meters, this home is ideal for multigenerational living or maximizing rental income. Live in one unit and rent the other, or lease both-a smart investment with strong income potential. Located in a highly desirable, family-friendly neighbourhood, just steps to parks, schools, shopping, restaurants, and everyday amenities, with easy access to Highways 401, 412, and 407 and public transit. (id:61852)
| MLS® Number | E12953650 |
| Property Type | Single Family |
| Community Name | Downtown Whitby |
| ParkingSpaceTotal | 4 |
| BathroomTotal | 4 |
| BedroomsAboveGround | 3 |
| BedroomsBelowGround | 2 |
| BedroomsTotal | 5 |
| Amenities | Fireplace(s) |
| ArchitecturalStyle | Bungalow |
| BasementDevelopment | Finished |
| BasementFeatures | Apartment In Basement, Walk Out, Separate Entrance |
| BasementType | N/a (finished), N/a, N/a, N/a |
| ConstructionStyleAttachment | Semi-detached |
| CoolingType | None |
| ExteriorFinish | Brick, Stone |
| FireplacePresent | Yes |
| FlooringType | Porcelain Tile, Hardwood, Carpeted |
| FoundationType | Poured Concrete |
| HalfBathTotal | 1 |
| HeatingFuel | Natural Gas |
| HeatingType | Forced Air |
| StoriesTotal | 1 |
| SizeInterior | 1500 - 2000 Sqft |
| Type | House |
| UtilityWater | Municipal Water |
| Attached Garage | |
| Garage |
| Acreage | No |
| Sewer | Sanitary Sewer |
| SizeDepth | 271 Ft |
| SizeFrontage | 27 Ft |
| SizeIrregular | 27 X 271 Ft |
| SizeTotalText | 27 X 271 Ft |
| Level | Type | Length | Width | Dimensions |
|---|---|---|---|---|
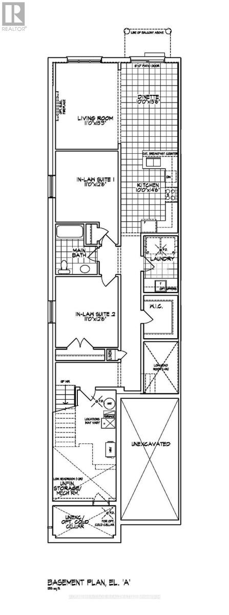
| Basement | Bedroom | 3.35 m | 3.81 m | 3.35 m x 3.81 m |
| Basement | Kitchen | 3.04 m | 4.41 m | 3.04 m x 4.41 m |
| Basement | Eating Area | 3.04 m | 4.72 m | 3.04 m x 4.72 m |
| Basement | Living Room | 3.35 m | 4.64 m | 3.35 m x 4.64 m |
| Basement | Bedroom | 3.35 m | 3.81 m | 3.35 m x 3.81 m |
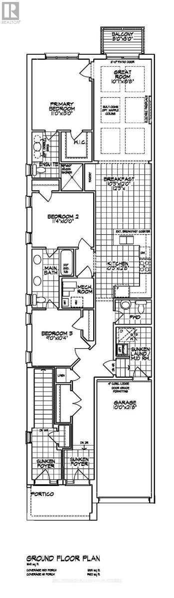
| Main Level | Kitchen | 3.12 m | 3.86 m | 3.12 m x 3.86 m |
| Main Level | Eating Area | 3.12 m | 3.65 m | 3.12 m x 3.65 m |
| Main Level | Great Room | 3.22 m | 5.68 m | 3.22 m x 5.68 m |
| Main Level | Primary Bedroom | 3.35 m | 3.96 m | 3.35 m x 3.96 m |
| Main Level | Bedroom 2 | 3.45 m | 3.04 m | 3.45 m x 3.04 m |
| Main Level | Bedroom 3 | 2.74 m | 3.15 m | 2.74 m x 3.15 m |
https://www.realtor.ca/real-estate/29553314/807-athol-street-whitby-downtown-whitby-downtown-whitby
Contact us for more information
Mike J. Fourcaudot
Salesperson
Caitlyn Osborn
Broker