3 Bedroom
2 Bathroom
1500 - 2000 sqft
Forced Air
$779,900
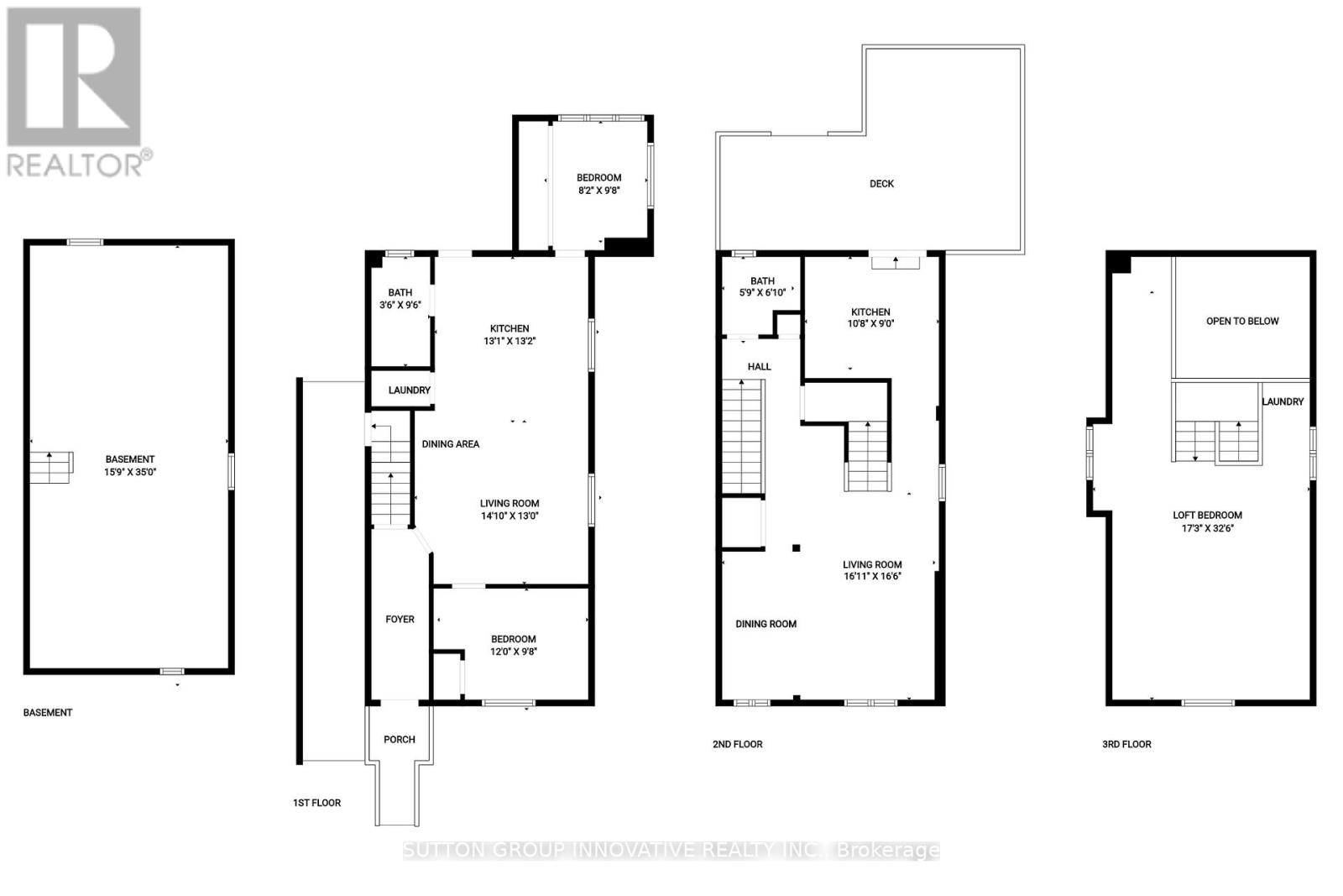
Two family home set up with separate entrances and separate hydro, offering flexibility for investors or buyers looking to live in one unit and use the other for extended family or income potential.Main floor unit is currently rented and features 2 bedrooms, open-concept kitchen with eating area and living room, 3-piece bathroom, and in-unit laundry. 9.5 ft ceilings and tall windows add to the sense of space, and the kitchen offers a walk out to the backyard deck. Upper unit spans the second and third floors with open-concept kitchen, dining, and living area. The 2nd floor kitchen features exposed wood beams and walks out to a generous deck with fire escape. Third-floor loft features a spacious primary bedroom with vaulted ceiling, exposed beams, heat pump for heating and cooling, and laundry.Updated flooring, freshly painted, and tasteful lighting fixtures throughout. Furnace and water heater approximately 4 years old. Unfinished basement.Double detached garage off alley plus 2-car interlocking driveway at the front. Ample green space in fully fenced backyard.Located in West Hamilton on a family-friendly street, just minutes to Locke Street shops, restaurants, and cafés, Dundurn Castle, the waterfront, and McMaster University, with convenient access to transit and major routes. (id:61852)
Property Details
|
MLS® Number
|
X12913736 |
|
Property Type
|
Single Family |
|
Neigbourhood
|
Strathcona |
|
Community Name
|
Strathcona |
|
AmenitiesNearBy
|
Hospital, Park, Place Of Worship, Public Transit |
|
CommunityFeatures
|
Community Centre |
|
EquipmentType
|
Furnace |
|
Features
|
Carpet Free, In-law Suite |
|
ParkingSpaceTotal
|
4 |
|
RentalEquipmentType
|
Furnace |
|
Structure
|
Deck |
Building
|
BathroomTotal
|
2 |
|
BedroomsAboveGround
|
3 |
|
BedroomsTotal
|
3 |
|
Age
|
100+ Years |
|
Appliances
|
Water Heater, Blinds, Dryer, Stove, Washer, Refrigerator |
|
BasementFeatures
|
Separate Entrance |
|
BasementType
|
N/a |
|
ConstructionStyleAttachment
|
Detached |
|
ExteriorFinish
|
Brick, Stucco |
|
FoundationType
|
Stone |
|
HeatingFuel
|
Natural Gas |
|
HeatingType
|
Forced Air |
|
StoriesTotal
|
3 |
|
SizeInterior
|
1500 - 2000 Sqft |
|
Type
|
House |
|
UtilityWater
|
Municipal Water |
Parking
Land
|
Acreage
|
No |
|
FenceType
|
Fenced Yard |
|
LandAmenities
|
Hospital, Park, Place Of Worship, Public Transit |
|
Sewer
|
Sanitary Sewer |
|
SizeDepth
|
100 Ft |
|
SizeFrontage
|
25 Ft |
|
SizeIrregular
|
25 X 100 Ft |
|
SizeTotalText
|
25 X 100 Ft |
Rooms
| Level |
Type |
Length |
Width |
Dimensions |
|
Second Level |
Kitchen |
3.28 m |
3.2 m |
3.28 m x 3.2 m |
|
Second Level |
Living Room |
5.16 m |
5.03 m |
5.16 m x 5.03 m |
|
Second Level |
Bathroom |
|
|
Measurements not available |
|
Third Level |
Bedroom 3 |
8.31 m |
5.23 m |
8.31 m x 5.23 m |
|
Main Level |
Kitchen |
3.99 m |
4.01 m |
3.99 m x 4.01 m |
|
Main Level |
Living Room |
3.3 m |
3.96 m |
3.3 m x 3.96 m |
|
Main Level |
Bedroom |
3 m |
3.66 m |
3 m x 3.66 m |
|
Main Level |
Bedroom 2 |
2.95 m |
2.54 m |
2.95 m x 2.54 m |
|
Main Level |
Bathroom |
|
|
Measurements not available |
|
Main Level |
Laundry Room |
|
|
Measurements not available |
Utilities
|
Cable
|
Installed |
|
Electricity
|
Installed |
|
Sewer
|
Installed |
https://www.realtor.ca/real-estate/29507809/57-new-street-hamilton-strathcona-strathcona