LOADING

401 - 2486 Old Bronte Road Oakville, Ontario L6M 9Y5

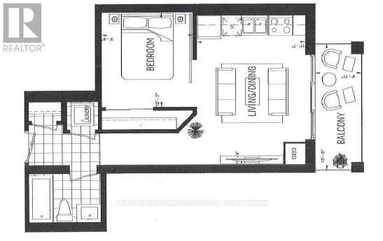
1 Bedroom 1 Bathroom 500 - 599 sqft
Other

$2,025 Monthly

Beautiful open concept 1 bedroom condo located in prestigious Mint complex in Bronte Creek. Freshly installed quartz countertops, vinyl plank flooring and paint. Suite includes 1 underground parking/storage locker and in suite laundry. Amenities include gym, party room and rooftop. No smoking or pets permitted. Close to highways, shopping, hospital and Go Station. AAA credit only and Rental App, credit report and employment confirmation required. Hydro only utility paid by tenant. (id:61852)

Property Details

MLS® Number W12744258
Property Type Single Family
Community Name 1019 - WM Westmount
CommunityFeatures Pets Allowed With Restrictions
Features Balcony, In Suite Laundry
ParkingSpaceTotal 1

Building

BathroomTotal 1
BedroomsAboveGround 1
BedroomsTotal 1
Amenities Storage - Locker
Appliances Intercom, Dishwasher, Dryer, Microwave, Stove, Washer, Refrigerator
BasementType None
ExteriorFinish Brick, Stucco
HeatingFuel Other
HeatingType Other
SizeInterior 500 - 599 Sqft
Type Apartment

Parking

Underground
Garage

Land

Acreage No

Rooms

Level Type Dimensions
Main Level Bedroom 2.95 m x 3 m
Main Level Living Room 3.58 m x 4.72 m
Main Level Laundry Room Measurements not available
Main Level Bathroom Measurements not available
Main Level Kitchen 1.83 m x 3.58 m

https://www.realtor.ca/real-estate/29308310/401-2486-old-bronte-road-oakville-wm-westmount-1019-wm-westmount

Interested?

Contact us for more information


Generating Captcha

Conrad Guy Zurini
Broker of Record


RE/MAX Escarpment Realty Inc.
2180 Itabashi Way #4b
Burlington, Ontario L7M 5A5

Your Favourites

 

No Favourites Found