LOADING

31 - 851 Sheppard Avenue W Toronto, Ontario M3H 0G2

2 Bedroom 3 Bathroom 1000 - 1199 sqft
Central Air Conditioning Forced Air

$2,750 Monthly

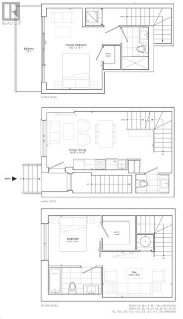
Introducing Greenwich Village Towns, a contemporary townhome development by Crown Communities, ideally located just steps from Sheppard West Subway Station. This stylish 1,010 sq. ft. home offers 2 generous bedrooms, 2.5 bathrooms, and a 79 sq. ft. balcony. The open-concept layout features a European inspired kitchen with sleek cabinetry, quartz countertops, a stylish backsplash, and stainless steel appliances. Laminate flooring, 9' ceilings, and a wood staircase enhance the home's modern appeal. The building also offers bike storage and visitor parking. Enjoy easy transit access to York University, with Yorkdale Shopping Center and Downsview Park just minutes away by car. (id:61852)

Property Details

MLS® Number C12600758
Property Type Single Family
Neigbourhood Lansing-Westgate
Community Name Bathurst Manor
CommunityFeatures Pets Not Allowed
EquipmentType Water Heater
Features Balcony, Carpet Free, In Suite Laundry
ParkingSpaceTotal 1
RentalEquipmentType Water Heater

Building

BathroomTotal 3
BedroomsAboveGround 2
BedroomsTotal 2
Age 0 To 5 Years
Amenities Storage - Locker
Appliances Dishwasher, Furniture, Microwave, Stove, Window Coverings, Refrigerator
BasementType None
CoolingType Central Air Conditioning
ExteriorFinish Brick
FlooringType Laminate
HalfBathTotal 1
HeatingFuel Natural Gas
HeatingType Forced Air
StoriesTotal 3
SizeInterior 1000 - 1199 Sqft
Type Row / Townhouse

Parking

Underground
Garage

Land

Acreage No

Rooms

Level Type Dimensions
Lower Level Family Room 4 m x 2.68 m
Lower Level Bedroom 2.77 m x 2.86 m
Main Level Living Room 5.82 m x 3.08 m
Upper Level Primary Bedroom 4.6 m x 2.8 m

https://www.realtor.ca/real-estate/29161972/31-851-sheppard-avenue-w-toronto-bathurst-manor-bathurst-manor

Interested?

Contact us for more information


Generating Captcha

Peter J Brown
Salesperson


Royal LePage Real Estate Services Ltd.
251 North Service Rd #102
Oakville, Ontario L6M 3E7

Andrew H. Keyes
Salesperson


Royal LePage Real Estate Services Ltd.
251 North Service Rd #102
Oakville, Ontario L6M 3E7

John Zottola
Salesperson


Royal LePage Real Estate Services Ltd.
251 North Service Rd #102
Oakville, Ontario L6M 3E7

Your Favourites

 

No Favourites Found