LOADING

3 Oriole Avenue South Bruce Peninsula, Ontario N0H 2T0

$139,000

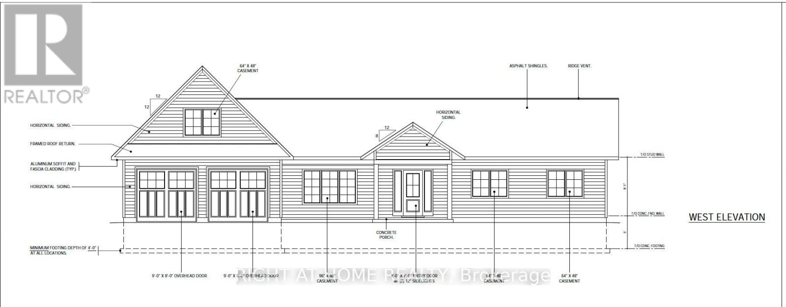
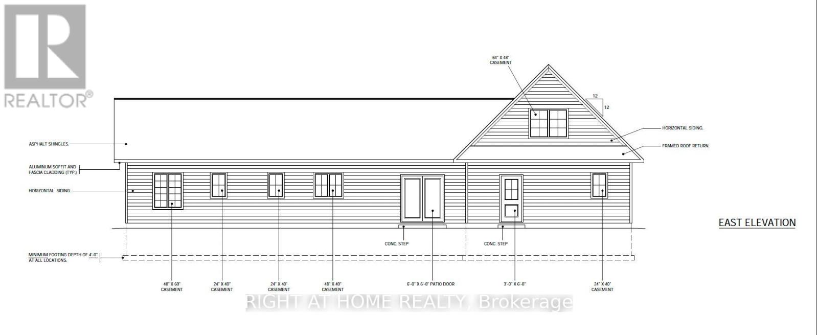
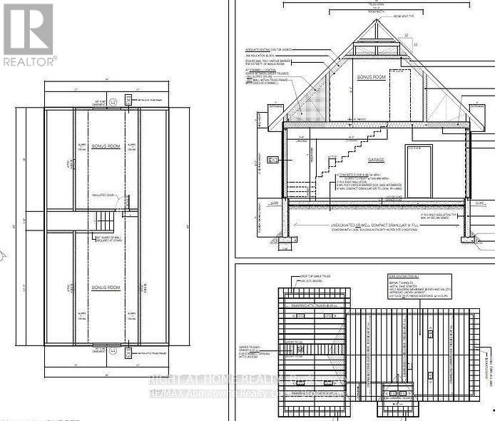
Huge Potential for investors with vision! Zoned R3 with a generous lot size ideal for a variety of building styles permitting multi-residential 3+ units, triplexes, townhouses & more. Huge investment potential!Rare opportunity to own a PREMIUM 100' x 140' building lot in the sought-after lakeside community of Oliphant on the beautiful Bruce Peninsula. Surrounded by mature trees, natural beauty, and established homes and cottages, this property offers the perfect setting for your dream cottage or year-round residence.What truly sets this lot apart it comes with approved architectural drawings and a building permit for a thoughtfully designed 4-bedroom, 3-bathroom bungalow, saving you significant time, money, and months of planning. The seller has already made a substantial investment to have this completed. Simply pull your permit and start building. Just a short walk to the shores of Lake Huron and a 2-minute drive to the popular Oliphant North Beach, renowned for its shallow, crystal-clear waters a premier destination for kiteboarding, windsurfing, sailing, and outdoor adventure. Conveniently located a short drive to Sauble Beach and Wiarton. Priced for a quick sale this is exceptional value in today's market. Don't miss your chance to secure one of the best-valued building lots on the Bruce Peninsula. Come and check yourself (id:61852)

Property Details

MLS® Number X12742132
Property Type Vacant Land
Community Name South Bruce Peninsula

Building

Land

Acreage No
SizeDepth 140 Ft
SizeFrontage 100 Ft
SizeIrregular 100 X 140 Ft
SizeTotalText 100 X 140 Ft|under 1/2 Acre

Utilities

Cable Available

https://www.realtor.ca/real-estate/29305936/3-oriole-avenue-south-bruce-peninsula-south-bruce-peninsula

Interested?

Contact us for more information


Generating Captcha

Oleg Snihur
Salesperson


Right At Home Realty
16850 Yonge Street #6b
Newmarket, Ontario L3Y 0A3

Your Favourites

 

No Favourites Found