LOADING

26 Lathbury Street Brampton, Ontario L7A 0R5

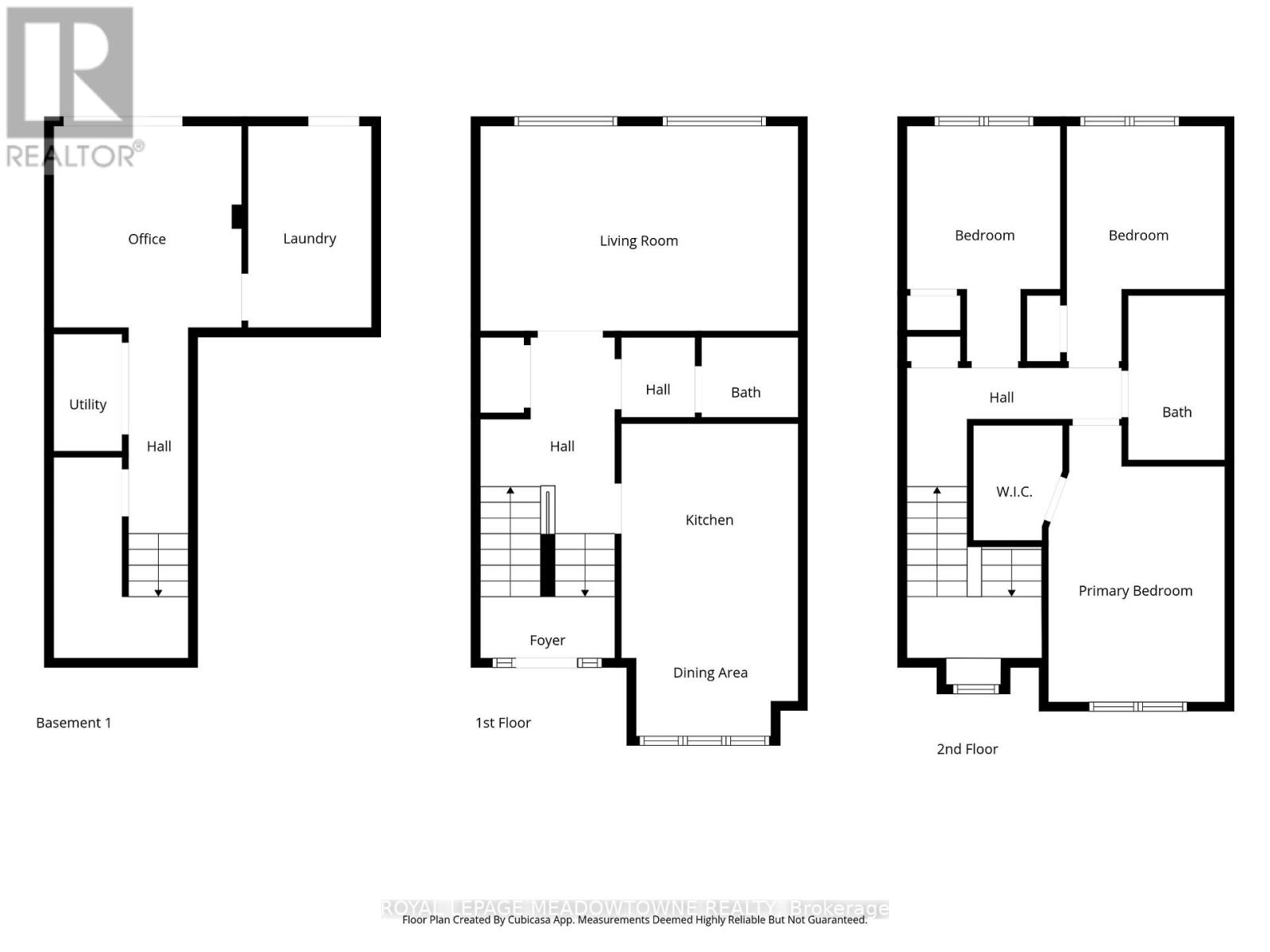
3 Bedroom 2 Bathroom 1100 - 1500 sqft
Central Air Conditioning Forced Air

$690,000

First time offered for sale! Welcome to 26 Lathbury Street. No monthly condo or road fees!! Freehold move-in ready home offering 1200 + sq ft of comfortable living space in Northwest Brampton. This property is an excellent opportunity for buyers looking to enter the market or move up without the added cost of condo fees. The fantastic floor plan maximizes every square inch and features a bright and functional layout with an open concept living and dining area. The functional eat in kitchen has lots of counter space and cupboards. This floor also provides a convenient powder room. The versatile family room or flex space in the basement enjoys walkout access to the backyard. Plus, direct garage access for everyday convenience. Upstairs, you will find 3 generously sized bedrooms and a full 4 piece bathroom. The primary fits a king-size bed with room to spare, along with a walk-in closet for ultimate organization. Outside, the property provides parking for two vehicles and a private backyard space ideal for relaxing or entertaining. Located close to schools, parks, shopping, and public transit, Mount Pleasant GO is only minutes away. This is a fantastic opportunity if you are seeking a super clean, well maintained freehold home with no condo fees in a growing and accessible community. Book your private showing today, before it's too late! (id:61852)

Property Details

MLS® Number W13039444
Property Type Single Family
Neigbourhood Mount Pleasant
Community Name Northwest Brampton
AmenitiesNearBy Park, Place Of Worship, Hospital, Public Transit
CommunityFeatures Community Centre
EquipmentType Water Heater
Features Level
ParkingSpaceTotal 2
RentalEquipmentType Water Heater
Structure Porch

Building

BathroomTotal 2
BedroomsAboveGround 3
BedroomsTotal 3
Age 6 To 15 Years
Appliances Dishwasher, Dryer, Microwave, Stove, Washer, Window Coverings, Refrigerator
BasementDevelopment Finished
BasementFeatures Walk Out, Separate Entrance
BasementType N/a (finished), N/a
ConstructionStyleAttachment Attached
CoolingType Central Air Conditioning
ExteriorFinish Brick
FlooringType Tile, Carpeted
FoundationType Poured Concrete
HalfBathTotal 1
HeatingFuel Natural Gas
HeatingType Forced Air
StoriesTotal 2
SizeInterior 1100 - 1500 Sqft
Type Row / Townhouse
UtilityWater Municipal Water

Parking

Attached Garage
Garage

Land

Acreage No
FenceType Fenced Yard
LandAmenities Park, Place Of Worship, Hospital, Public Transit
Sewer Sanitary Sewer
SizeDepth 83 Ft
SizeFrontage 18 Ft ,3 In
SizeIrregular 18.3 X 83 Ft
SizeTotalText 18.3 X 83 Ft
ZoningDescription A1

Rooms

Level Type Dimensions
Second Level Bedroom 2.94 m x 4.6 m
Second Level Bedroom 2 2.63 m x 3.92 m
Second Level Bedroom 3 3.27 m x 2.55 m
Basement Family Room 3.13 m x 3.36 m
Basement Laundry Room 2.06 m x 3.36 m
Main Level Kitchen 2.94 m x 2.78 m
Main Level Living Room 5.27 m x 3.4 m
Main Level Dining Room 2.94 m x 2.42 m

Utilities

Cable Installed
Electricity Installed
Sewer Installed

https://www.realtor.ca/real-estate/29651700/26-lathbury-street-brampton-northwest-brampton-northwest-brampton

Interested?

Contact us for more information


Generating Captcha

Matthew Oles
Salesperson


Royal LePage Meadowtowne Realty
324 Guelph Street Suite 12
Georgetown, Ontario L7G 4B5

Lynn Oles
Broker


Royal LePage Meadowtowne Realty
324 Guelph Street Suite 12
Georgetown, Ontario L7G 4B5

Your Favourites

 

No Favourites Found