Welcome to 2488 Irish Line, Severn with just over 190 acres of natural beauty with endless potential! Approximately 10 acres are cleared in the front of the property and 2 more acres cleared at the back by the pond. This property is ideal for a hobby farm, while the expansive back acreage with trails makes this property a dream for hunters, ATV'g, or simply enjoying the outdoors. The property includes a 3-bedroom, 2-bathroom home ready for your TLC or the perfect spot to build your dream residence. A 200 ft drilled well, septic system, and detached oversized garage measuring approximately 22X24 with electricity are already in place. Enjoy abundant wildlife, a quiet school bus route, and proximity to McClean Lake, with connections to the Severn River and Big Chute. Conveniently located just 30 minutes to Orillia or Midland, and only 1.5 hours to Toronto, this rare offering provides privacy, recreation, and endless opportunity in sought-after Severn. (id:61852)
| MLS® Number | S12396271 |
| Property Type | Single Family |
| Community Name | Coldwater |
| Features | Wooded Area |
| ParkingSpaceTotal | 9 |
| BathroomTotal | 2 |
| BedroomsAboveGround | 3 |
| BedroomsTotal | 3 |
| Appliances | Stove |
| BasementType | Crawl Space |
| ConstructionStyleAttachment | Detached |
| CoolingType | Central Air Conditioning |
| FoundationType | Stone |
| HalfBathTotal | 1 |
| HeatingFuel | Natural Gas |
| HeatingType | Heat Pump |
| StoriesTotal | 2 |
| SizeInterior | 700 - 1100 Sqft |
| Type | House |
| UtilityWater | Drilled Well |
| Detached Garage | |
| Garage |
| Acreage | Yes |
| Sewer | Septic System |
| SizeDepth | 4386 Ft ,4 In |
| SizeFrontage | 1993 Ft |
| SizeIrregular | 1993 X 4386.4 Ft |
| SizeTotalText | 1993 X 4386.4 Ft|100+ Acres |
| SurfaceWater | Lake/pond |
| ZoningDescription | Ru |
| Level | Type | Length | Width | Dimensions |
|---|---|---|---|---|
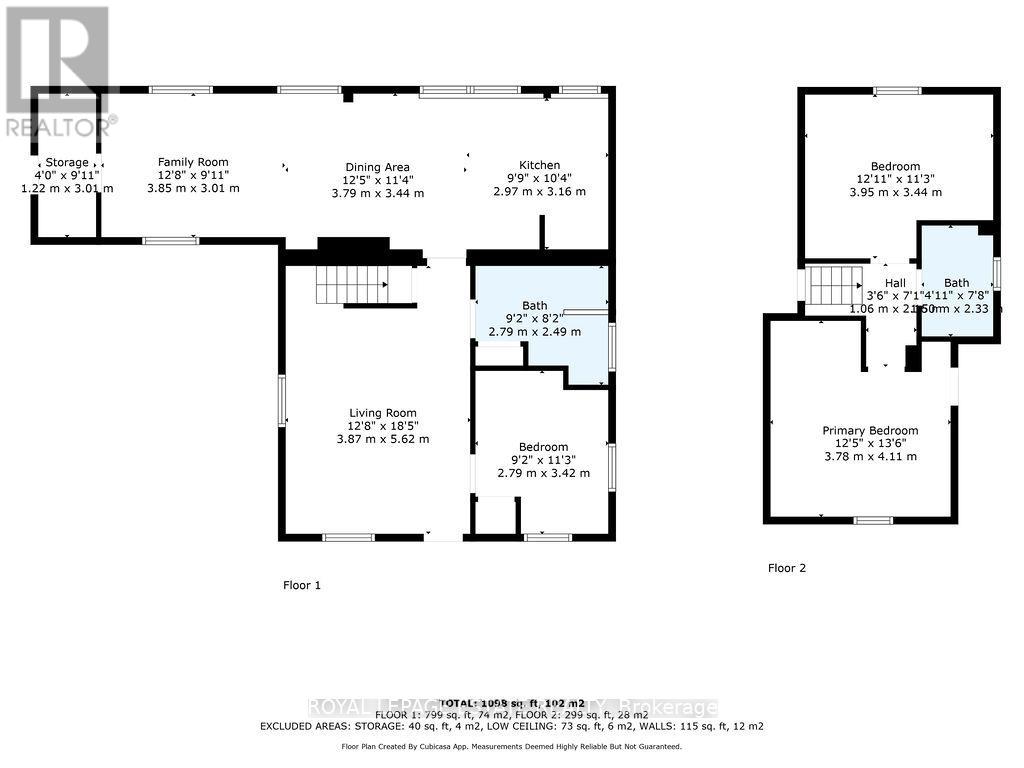
| Second Level | Bedroom | 3.78 m | 4.11 m | 3.78 m x 4.11 m |
| Second Level | Bedroom 3 | 3.95 m | 3.44 m | 3.95 m x 3.44 m |
| Second Level | Bathroom | 5 m | 2.33 m | 5 m x 2.33 m |
| Main Level | Living Room | 3.87 m | 5.62 m | 3.87 m x 5.62 m |
| Main Level | Kitchen | 2.97 m | 3.16 m | 2.97 m x 3.16 m |
| Main Level | Dining Room | 3.79 m | 3.44 m | 3.79 m x 3.44 m |
| Main Level | Family Room | 3.85 m | 3.01 m | 3.85 m x 3.01 m |
| Main Level | Bedroom 2 | 2.79 m | 3.42 m | 2.79 m x 3.42 m |
| Main Level | Bathroom | 2.79 m | 2.49 m | 2.79 m x 2.49 m |
https://www.realtor.ca/real-estate/28847037/2488-irish-line-severn-coldwater-coldwater
Contact us for more information
Corinna Taylor
Salesperson