LOADING

176 Millen Road Hamilton, Ontario L8E 2G5

$475,000

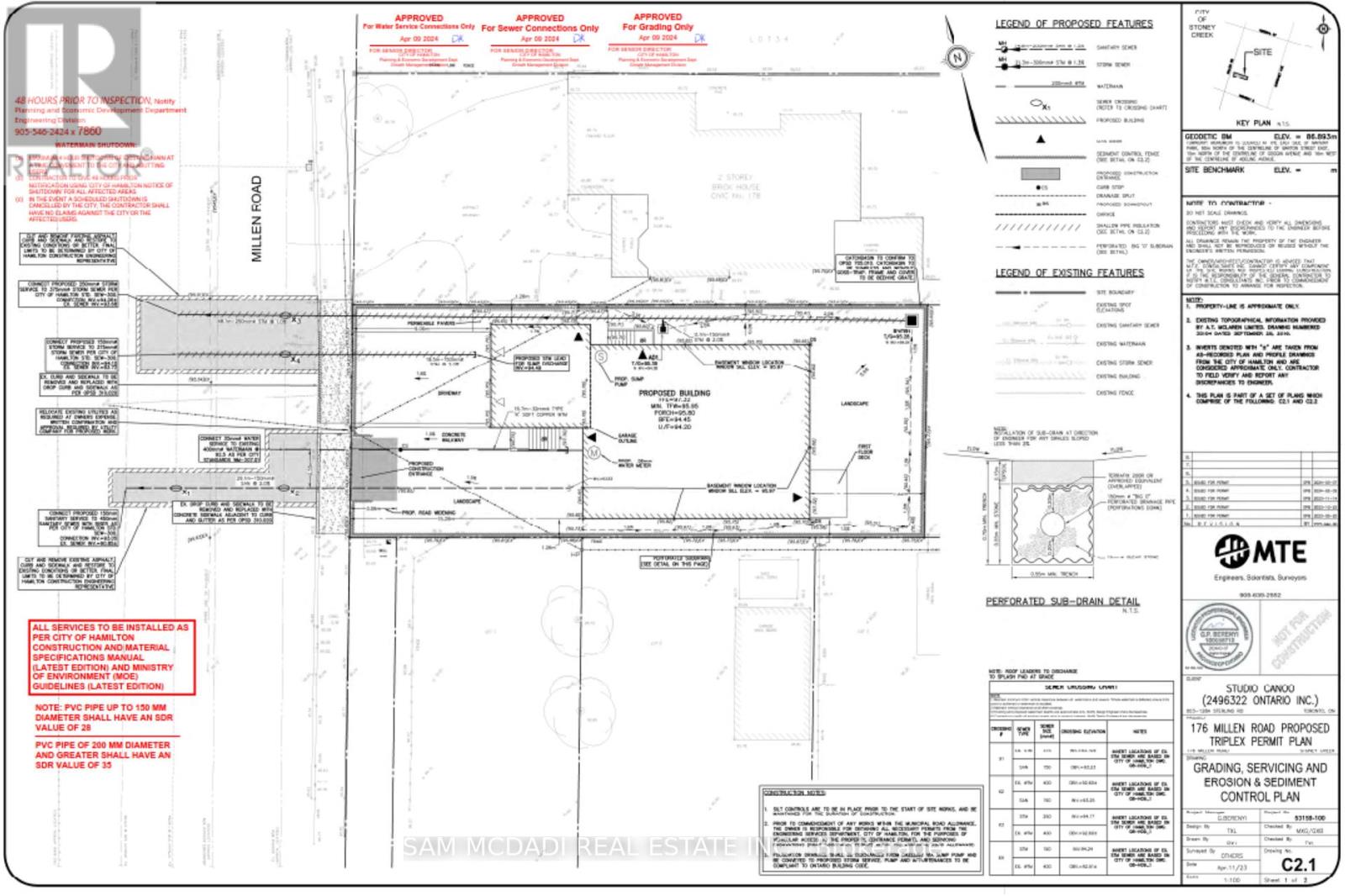
Great Building Lot & Opportunity in prime Location in Lower Stoney Creek Community! This Premium 50x113 Ft Lot has Been Severed, Serviced & Ready for Your Design & Vision!! Shovel Ready Just Need to Apply for Your Building Permits! Zoning Allows for Legal Multi Unit Duplex, Single Custom-Built Home, Multi Family or Separate ADU Possibility Providing Various Options! Custom Build your New Home with Ability for In-law or Guest Suite for Multi Family Living, Rental Income Generating Layout or Build a Multi Residential Unit Rental Investment with Additional Dwelling Unit for Extra Residential Unit. Features Private Rear Yard with No Rear Neighbouring Homes, a Central Location, Fenced Side Yards, a Great Building Envelope for Various Design Options & Located in Sought After Community with Other Neighbouring Custom-Built Homes in the Area, Views of Niagara Escarpment, Walk to Parks, Great Schools, Various Shops & Services, Public Transportation, Local Farms, Wineries & Easily Access New Stoney Creek GO Station, QEW/407/403 & Major Highways, Major Shopping Centres/Malls, Hospitals, Quaint Downtown Stoney Creek, 20 Minutes to Downtown Burlington & Burlington GO, Quick Access to Niagara Region, Surrounding Hamilton Area & More. Lot is Ready! Survey & Servicing Plan Completed and Available for Buyer, All Municipal Services in Place. Create your Design, Apply for Permits, Pay Applicable Permit Fees & Start Building your Vision Today!! Great Investment, Location & Opportunity! (id:61852)

Property Details

MLS® Number X12809428
Property Type Vacant Land
Community Name Stoney Creek
AmenitiesNearBy Park, Public Transit, Schools
CommunityFeatures Community Centre

Building

UtilityWater Municipal Water

Land

Acreage No
FenceType Fenced Yard
LandAmenities Park, Public Transit, Schools
Sewer Sanitary Sewer
SizeDepth 113 Ft ,7 In
SizeFrontage 50 Ft
SizeIrregular 50.07 X 113.63 Ft
SizeTotalText 50.07 X 113.63 Ft
ZoningDescription R2

Utilities

Cable Installed
Electricity Installed
Sewer Installed

https://www.realtor.ca/real-estate/29386414/176-millen-road-hamilton-stoney-creek-stoney-creek

Interested?

Contact us for more information


Generating Captcha

Sam Allan Mcdadi
Salesperson


Sam Mcdadi Real Estate Inc.
110 - 5805 Whittle Rd
Mississauga, Ontario L4Z 2J1

Bruno Miguel Gomes
Salesperson


Sam Mcdadi Real Estate Inc.
110 - 5805 Whittle Rd
Mississauga, Ontario L4Z 2J1

Your Favourites

 

No Favourites Found