Maintenance, Electricity, Water
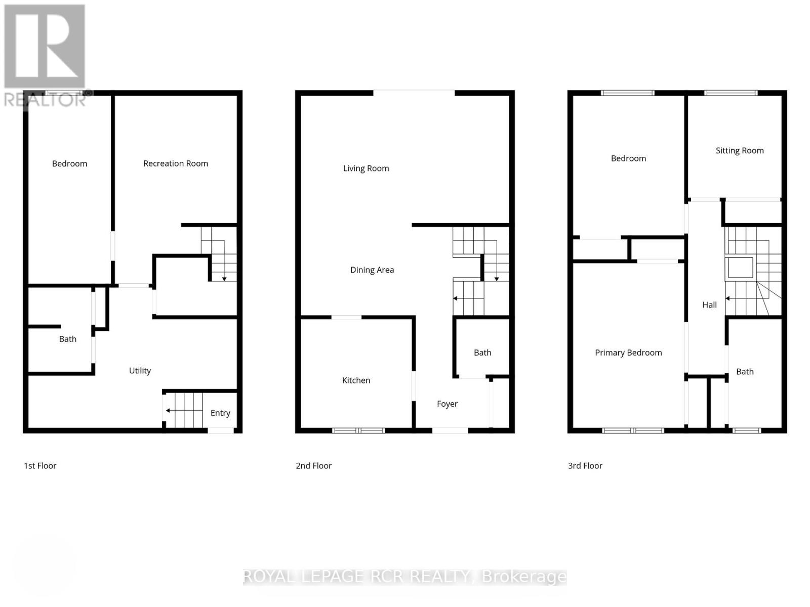
$753.22 MonthlyWelcome to Unit 12 - 2825 Gananoque Drive, a bright and spacious 3+1 bedroom, 3 bathroom townhouse located in the highly desirable Meadowvale community of Mississauga. This well-maintained and upgraded home offers a functional layout that is perfect for families, first-time buyers, or those looking for comfortable and convenient, maintenance free living. Step inside to discover a welcoming living and dining area ideal for relaxing or entertaining. Upstairs, you'll find a primary room with inviting double doors and a his & hers closets, along with two other generous sized bedrooms along with well-appointed bathroom with double sinks designed for practicality, class and comfort. Situated in a quiet and established complex, this home is just minutes from parks, schools, shopping and walking trails, making it an excellent choice for families and outdoor enthusiasts. Enjoy the convenience of 2 underground parking spots as well as visitor parking for guests.With nearby shopping, transit options, emergency services and easy access to major routes, this home offers an ideal balance of comfort, location, and everyday convenience in one of Mississauga's most family-friendly neighbourhoods. (id:61852)
| MLS® Number | W12934138 |
| Property Type | Single Family |
| Community Name | Meadowvale |
| AmenitiesNearBy | Hospital, Public Transit, Schools |
| CommunityFeatures | Pets Allowed With Restrictions, Community Centre |
| EquipmentType | Water Heater |
| Features | Open Space, Flat Site |
| ParkingSpaceTotal | 2 |
| RentalEquipmentType | Water Heater |
| Structure | Playground, Patio(s) |
| BathroomTotal | 3 |
| BedroomsAboveGround | 3 |
| BedroomsBelowGround | 1 |
| BedroomsTotal | 4 |
| Amenities | Visitor Parking |
| Appliances | Water Heater, Blinds, Dishwasher, Dryer, Freezer, Microwave, Oven, Range, Stove, Washer, Window Coverings, Refrigerator |
| BasementDevelopment | Finished |
| BasementFeatures | Walk Out |
| BasementType | N/a (finished) |
| CoolingType | Central Air Conditioning |
| ExteriorFinish | Stone |
| FoundationType | Poured Concrete |
| HalfBathTotal | 1 |
| HeatingFuel | Natural Gas |
| HeatingType | Forced Air |
| StoriesTotal | 2 |
| SizeInterior | 1400 - 1599 Sqft |
| Type | Row / Townhouse |
| Underground | |
| Garage |
| Acreage | No |
| FenceType | Fenced Yard |
| LandAmenities | Hospital, Public Transit, Schools |
| ZoningDescription | Rms |
| Level | Type | Length | Width | Dimensions |
|---|---|---|---|---|
| Lower Level | Family Room | 3.59 m | 3.45 m | 3.59 m x 3.45 m |
| Lower Level | Laundry Room | 4.08 m | 2.94 m | 4.08 m x 2.94 m |
| Lower Level | Bedroom 4 | 2.35 m | 5.35 m | 2.35 m x 5.35 m |
| Lower Level | Bathroom | 2.52 m | 2.57 m | 2.52 m x 2.57 m |
| Main Level | Kitchen | 3.25 m | 2.99 m | 3.25 m x 2.99 m |
| Main Level | Dining Room | 2.57 m | 4.38 m | 2.57 m x 4.38 m |
| Main Level | Living Room | 3.63 m | 6.04 m | 3.63 m x 6.04 m |
| Main Level | Bathroom | 1.52 m | 1.52 m | 1.52 m x 1.52 m |
| Upper Level | Primary Bedroom | 3.23 m | 4.88 m | 3.23 m x 4.88 m |
| Upper Level | Bedroom 2 | 3.2 m | 4.06 m | 3.2 m x 4.06 m |
| Upper Level | Bedroom 3 | 2.74 m | 3 m | 2.74 m x 3 m |
| Upper Level | Bathroom | 1.56 m | 3.11 m | 1.56 m x 3.11 m |
Contact us for more information
Brittney Stewart
Salesperson