2 Bedroom
1 Bathroom
700 - 1100 sqft
Heat Pump
$1,900 Monthly
Spacious renovated "Split layout" 2-bedroom apartments in a 3-storey character building in Crown Point West. Fully equipped with modern amenities & your own self-controlled Energy-efficient heat pump & Air conditioning system, with remote control. Convenient location just minutes to all of the action of Ottawa street>> Walmart, Metro, gym, big stores, shops and restaurants!! MODERN, WHITE & BRIGHT. Vinyl wood flooring throughout. Open-concept renovated kitchens with quartz counters & stainless steel appliances, a large washroom, your own ensuite washer & dryer. *Municipal Car park 39B at the rear of the building w/option for monthly parking pass. *Security system w/cameras and FOB entry system* Note: Rent + hydro+ tenant insurance. (Landlord covers water) (id:61852)
Property Details
|
MLS® Number
|
X12790720 |
|
Property Type
|
Multi-family |
|
Community Name
|
Crown Point |
|
AmenitiesNearBy
|
Public Transit, Place Of Worship |
|
CommunityFeatures
|
Community Centre |
|
Features
|
Lane, Lighting |
Building
|
BathroomTotal
|
1 |
|
BedroomsAboveGround
|
2 |
|
BedroomsTotal
|
2 |
|
Age
|
100+ Years |
|
Amenities
|
Separate Electricity Meters |
|
Appliances
|
Dishwasher, Dryer, Microwave, Stove, Washer, Refrigerator |
|
BasementDevelopment
|
Unfinished |
|
BasementType
|
N/a (unfinished) |
|
ExteriorFinish
|
Brick |
|
FireProtection
|
Security System |
|
FlooringType
|
Vinyl |
|
FoundationType
|
Brick |
|
HeatingFuel
|
Electric |
|
HeatingType
|
Heat Pump |
|
SizeInterior
|
700 - 1100 Sqft |
|
Type
|
Other |
|
UtilityWater
|
Municipal Water |
Parking
Land
|
Acreage
|
No |
|
LandAmenities
|
Public Transit, Place Of Worship |
|
Sewer
|
Sanitary Sewer |
|
SizeDepth
|
100 Ft |
|
SizeFrontage
|
37 Ft |
|
SizeIrregular
|
37 X 100 Ft |
|
SizeTotalText
|
37 X 100 Ft |
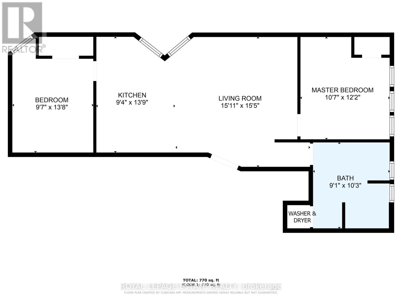
Rooms
| Level |
Type |
Length |
Width |
Dimensions |
|
Second Level |
Living Room |
4.85 m |
4.7 m |
4.85 m x 4.7 m |
|
Second Level |
Kitchen |
4.19 m |
2.84 m |
4.19 m x 2.84 m |
|
Second Level |
Primary Bedroom |
3.71 m |
3.23 m |
3.71 m x 3.23 m |
|
Second Level |
Bedroom 2 |
4.17 m |
2.92 m |
4.17 m x 2.92 m |
|
Second Level |
Other |
3.12 m |
2.77 m |
3.12 m x 2.77 m |
Utilities
|
Cable
|
Installed |
|
Electricity
|
Installed |
|
Sewer
|
Installed |
https://www.realtor.ca/real-estate/29363466/1-1052-barton-street-e-hamilton-crown-point-crown-point